Venta de villa en Las Lagunas, Las Lagunas

Referencia:

R4646191

Villa (Adosado) en venta

Las Lagunas, Las Lagunas mapa

385.000 € (impuestos y gastos no incluídos)
146 m2
4
2
Descripción

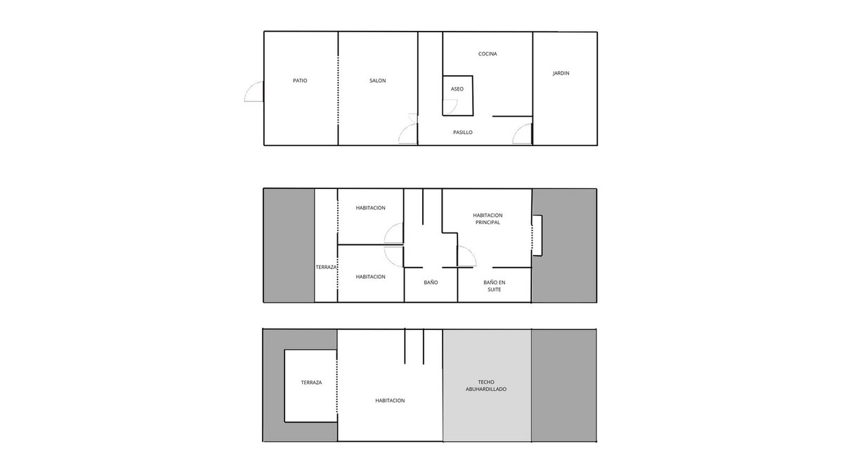
Villa adosado en Las Lagunas, con 146 m² construidos, 20 m² metros de parcela, 4 dormitorios, 2 baños, 1 terraza(s), 60 m² de terraza

Características
Inmueble
  • 146 M2 Construidos
  • 20 M2 Metros de parcela
  • 4 Dormitorios
  • 2 Baños
  • 1 Terraza(s)
  • 60 M2 De terraza
Edificio
Extras
Certificado energético
certificado energético
Simulador de hipoteca
Precio inmueble
Impuestos y gastos
Precio + gastos
0 €
Ahorro aportado
Plazo en años
Interés
Tu cuota mensual
0
Estos resultados son orientativos, calculados con los números que has introducido.
Mapa
Otros inmuebles que podrían ser de su interés

Amigo Inmobiliaria, profesionales inmobiliarios en Marbella

Esta página web utiliza cookies

Una cookie informática es un pequeño archivo de información que se guarda en tu navegador cada vez que visitas nuestra página web.

Nuestra página web utiliza entre otras, cookies técnicas que son imprescindibles para que la página pueda funcionar. Las tenemos activadas por defecto, pues no necesitan de tu autorización.

Más información en nuestro apartado POLÍTICA DE COOKIES.