Terreno en Elviria, 1088 m² metros de parcela, 1 terraza(s)
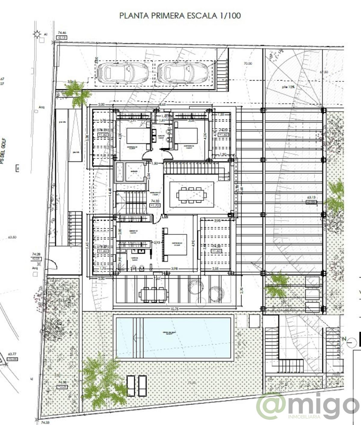
Parcela urbanizable en Elviria, en la conocida zona de Santa María Golf, a un paso del campo del golf y todos los servicios, muy bien comunicada a unos minutos de Marbella y Puerto Banús y a la playa. Tiene acceso por dos calles.Con una edificabilidad del 30, para una villa individual de 7.5m de altura, lo que permite una construcción de 326m2 sótano terrazas porches..Tiene un proyecto disponible para la construcción de una villa de 484.53m2 de 4 plantas en total, donde la planta principal tendría la entrada con acceso al gran salón comedor con cocina de estilo abierto, lavadero y grandes ventanales que darían salida directa a las terrazas, jardines y piscina, dos habitaciones y dos baños, vestidor, y subida a la primera planta por la escalera o el ascensor donde habría otros 3 dormitorios y 2 baños, tambien con vestidor y todos con terrazas, además desde esta planta hay subida al gran solarium donde hay zona de Chill out, BBQ, jacuzzi y unas increíbles vistas panorámicas.En la planta sótano habría gimnasio, baño, sala de cine, bodega y un garaje privado para varios coches, además tendría dos patios ingleses que le darían entrada de luz natural por lo que sería muy luminoso.Los exteriores estarían rodeados de jardines y una piscina con zonas de terrazas cubiertas y descubiertas.El precio es sólo de la parcela
