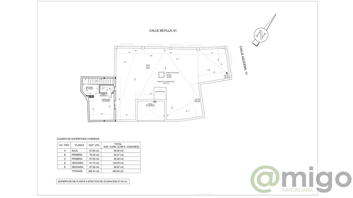
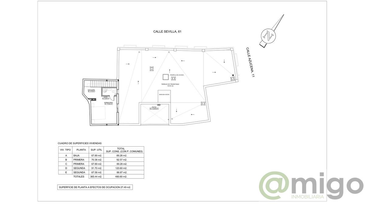
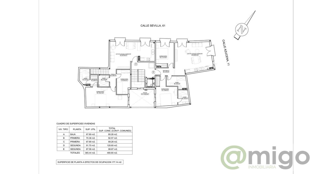
Terreno terreno en Estepona, con 480 m², 199 m² metros de parcela, 1 terraza(s)
Esta parcela, situada en el corazón del casco antiguo de Estepona en Málaga, ofrece una rara oportunidad de construir cinco apartamentos más un garaje. Con una superficie total de 480,6m y una parcela de 199,82m, esta propiedad está clasificada como de lujo y está disponible exclusivamente a través de nuestra agencia. Situado en una zona muy solicitada, esta parcela se encuentra a poca distancia de todos los servicios, incluyendo tiendas, escuelas y un parque infantil. Las hermosas playas de Estepona también están a tiro de piedra, proporcionando el escenario perfecto para la relajación y actividades de ocio. Los amantes del golf estarán encantados de saber que varios campos de golf están convenientemente cerca.El proyecto propuesto para esta parcela incluye la construcción de cinco apartamentos distribuidos en tres niveles, lo que garantiza un amplio espacio vital para los residentes. Además, un garaje subterráneo proporcionará aparcamiento seguro para los vehículos de los residentes. Esta propiedad es una excelente oportunidad de inversión, dada su ubicación privilegiada y la alta demanda de viviendas en el Casco Antiguo de Estepona. Tanto si desea desarrollar los apartamentos para reventa o alquiler, esta parcela ofrece un gran potencial para una empresa rentable. Para más información y para concertar una visita privada de esta oportunidad única, póngase en contacto con nuestra agencia. Nuestro equipo estará encantado de atenderle y proporcionarle más detalles sobre este emocionante proyecto.
