Local oficina en Marbella, con 343 m² construidos, 9 estancias, 3 baños, 1 terraza(s)
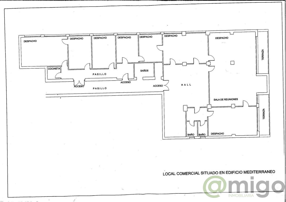
Venta en exclusiva. Local comercial _ Oficina situado en la planta de entrada al Edificio , ubicado en el paseo marítimo de Marbella y en pleno centro de la ciudad . Con una superficie útil de 343 m2, la oficina ocupa prácticamente la totalidad de la planta noble del edificio, todas las salas cuentan con grandes ventanales hacia el exterior a la calle, con vistas directas al mar y sobre el paseo marítimo, dando estas tanto al Sur al Este y al Oeste, por donde además entra mucha luz natural durante todo el día. En la actualidad la oficina cuenta con 7 despachos todos independientes uno del otro, además hay un generoso hall de entrada central y recepción que está inmediatamente contiguo a una enorme sala de reuniones con 2 terrazas exteriores frente al mar.Adicionalmente hay una pequeña sala que se ha usado como cocina para el personal. Y 4 cuartos de baños convenientemente distribuidos dentro de la oficina. El edificio cuenta con servicio de conserjería y recepción durante todo el día, también durante la noche. Esta fantástica oficina es ideal para despacho de abogados, gestoría, mutua de seguros, consultas médicas , clínica dental etc. etc. En general para cualquier tipo de oficina que requiera de la disponibilidad de mucho espacio y sobre todo con una excelente localización con fácil acceso en pleno centro de la ciudad.
